1 花园中的墓地
卡洛·斯卡帕是著名意大利建筑师。他1906 年在意大利威尼斯出生,但童年的很长一段时间在另一座城市维琴察度过。随后他回到威尼斯,进入威尼斯美术学院学习。在毕业之后,斯卡帕进入威尼斯建筑大学任教,同时从事建筑设计实践。他的绝大部分作品都涉及历史建筑的改造,只有极少数是完全新建的。在 20 世纪六七十年代,斯卡帕的作品逐渐得到广泛认同,他在 1972—1974 年出任了威尼斯建筑大学校长。不幸的是,1978 年他在日本访问时不慎从梯子上跌落,伤重去世。
在现代建筑史上,卡洛·斯卡帕是一位非常独特的建筑师。他无法被归于任何流派,也从未提出过任何宣言式的理论与主义,他留下的文献资料屈指可数,使得我们很难借助他自己的表述来理解他的设计。不过,这并没有阻碍研究者们从他的作品与背景中提炼出斯卡帕的设计特色。在 1983 年的一篇文章《斯卡帕作品中的过程与主题》中,斯卡帕曾经的学生朱塞佩·萨博尼尼(GiuseppeZambonini)对斯卡帕设计中的重要主题与工作方法进行了概括,他提到了赖特的影响,斯卡帕对绘图、手工艺、细部的重视,威尼斯特性,以及对水、空气、色彩等元素的特殊兴趣[13]。更多的学者在《卡洛·斯卡帕:作品全集》一书中对斯卡帕进行了更为深入的分析。
弗兰切斯卡·达尔·科(Francesco DalCo)讨论了斯卡帕建筑语汇的片断性,他认为这种说法脱离了“风格”概念的约束,给予斯卡帕超乎寻常的丰富性[14]。曼弗雷多·塔夫里(Manfredo Tafuri)则认为,在元素的片断性背后,则是一种持续的历史意识,在其中各种各样的影响与因素互相交织,使得斯卡帕的作品可以被无休止地解读[15]。休伯特·达米施(Hubert Damisch)认为斯卡帕的绘图侧重于平面与剖面,刻意避免过多的透视,一方面是为了更精确地展现细节与关系,另一方面也是避免过于视觉化地看待作品[16]。鲍里斯·波德雷卡(Boris Podrecca)与曼利奥·布鲁萨廷(Manlio Brusatin)都谈到了威尼斯的混乱与片断性对斯卡帕的独特影响[17-18]。
布鲁诺·赛维(Bruno Zevi)肯定了斯卡帕对艺术品、材料与细节的直觉,但是认为斯卡帕对空间手段的忽视仍然是一种缺陷[19]。肯尼斯·弗兰普顿在《建构文化研究》中有专门一章讨论斯卡帕的建构细节,并且对这些细节的文化内涵给予了阐述[20]。这些内容,绝大部分在最近出版的《卡洛·斯卡帕》(CarloScarpa)一书中得到了进一步的阐释,美国学者罗伯特·麦卡特(Robert Mc Carter)基于具体的案例对斯卡帕的设计语汇与策略进行了深入分析[21]。
弗兰切斯卡·达尔·科(Francesco DalCo)讨论了斯卡帕建筑语汇的片断性,他认为这种说法脱离了“风格”概念的约束,给予斯卡帕超乎寻常的丰富性[14]。曼弗雷多·塔夫里(Manfredo Tafuri)则认为,在元素的片断性背后,则是一种持续的历史意识,在其中各种各样的影响与因素互相交织,使得斯卡帕的作品可以被无休止地解读[15]。休伯特·达米施(Hubert Damisch)认为斯卡帕的绘图侧重于平面与剖面,刻意避免过多的透视,一方面是为了更精确地展现细节与关系,另一方面也是避免过于视觉化地看待作品[16]。鲍里斯·波德雷卡(Boris Podrecca)与曼利奥·布鲁萨廷(Manlio Brusatin)都谈到了威尼斯的混乱与片断性对斯卡帕的独特影响[17-18]。
布鲁诺·赛维(Bruno Zevi)肯定了斯卡帕对艺术品、材料与细节的直觉,但是认为斯卡帕对空间手段的忽视仍然是一种缺陷[19]。肯尼斯·弗兰普顿在《建构文化研究》中有专门一章讨论斯卡帕的建构细节,并且对这些细节的文化内涵给予了阐述[20]。这些内容,绝大部分在最近出版的《卡洛·斯卡帕》(CarloScarpa)一书中得到了进一步的阐释,美国学者罗伯特·麦卡特(Robert Mc Carter)基于具体的案例对斯卡帕的设计语汇与策略进行了深入分析[21]。
在这些学者的分析中,一个不断被提及的项目是布里昂墓园。学者们对这个项目中的很多具体元素进行了解读。比如萨博尼尼专门强调了双环主题的丰富内涵,以及水这种元素的象征意义;麦卡特特意讨论了混凝土叠涩梯步的设计;弗兰普顿提及了“囍”图样;斯特凡·布萨兹(Stefan Busaz)则记录了在布里昂墓园建造时发生的一个小故事,他说斯卡帕用非常“形而上学”化的语言与石匠沟通,而他的话竟然都被听懂了[22]。
这些分析的确帮助人们了解了斯卡帕一些特定语汇的内涵,认识到斯卡帕将很多丰富而深刻的建筑与景观语汇汇集在一个作品中,造就出他独特的“诗篇”。但这些分析并没有进一步告诉我们,这些诗篇具体有什么样的主题?它到底想向人们传递什么样的讯息?对于这样的问题,仅仅以“超乎寻常的丰富性”作答是不够的,如果斯卡帕自己没有直接作答,那么就只能依靠研究者进一步的评论分析去寻求可能的解答。
下面的文字,就是一次这样的尝试。笔者想要表述的是,在复杂的手段和语汇背后,布里昂墓园实际上具有主题上的统一性,它利用各种元素渲染了一个核心议题,那就是对于生与死依存关系的理解。下面,笔者将对此给予解释。

这些分析的确帮助人们了解了斯卡帕一些特定语汇的内涵,认识到斯卡帕将很多丰富而深刻的建筑与景观语汇汇集在一个作品中,造就出他独特的“诗篇”。但这些分析并没有进一步告诉我们,这些诗篇具体有什么样的主题?它到底想向人们传递什么样的讯息?对于这样的问题,仅仅以“超乎寻常的丰富性”作答是不够的,如果斯卡帕自己没有直接作答,那么就只能依靠研究者进一步的评论分析去寻求可能的解答。
下面的文字,就是一次这样的尝试。笔者想要表述的是,在复杂的手段和语汇背后,布里昂墓园实际上具有主题上的统一性,它利用各种元素渲染了一个核心议题,那就是对于生与死依存关系的理解。下面,笔者将对此给予解释。

布里昂墓园可以被认为是斯卡帕去世之前完成的最后一个重要作品。1968 年意大利企业家约瑟夫·布里昂(Giuseppe Brion)去世,遗孀奥诺里娜·布里昂(onorina Brion)决定在丈夫的家乡——威尼斯西北方向约 45 km的小镇圣维托达尔蒂沃勒——建造一座墓园安葬他,并且在自己去世之后合葬在这里。斯卡帕接受了这一委托,用大概 10 年时间设计建造了这座占地约 2 400 m2 的布里昂墓园。 “死者的领地有一种花园的感觉——19 世纪美国的大型墓地就像是巨大的公园。”[23] 斯卡帕的这句话很好地总结了布里昂墓园的设计,这里更像是一个花园(图 1)。
斯卡帕自己对这个项目十分喜爱,他写道:“这是唯一一个我带着欢愉去看的作品,因为我感到我按照布里昂家族希望的方式抓住了乡村的感觉。所有人都喜欢去那里——孩子们在玩耍,狗在周围奔跑——所有的墓地都应该这样。”[24] 这也是笔者要在这里讨论布里昂墓园的原因,在这个项目中,景观设计的要素占据了主导性地位。
斯卡帕自己对这个项目十分喜爱,他写道:“这是唯一一个我带着欢愉去看的作品,因为我感到我按照布里昂家族希望的方式抓住了乡村的感觉。所有人都喜欢去那里——孩子们在玩耍,狗在周围奔跑——所有的墓地都应该这样。”[24] 这也是笔者要在这里讨论布里昂墓园的原因,在这个项目中,景观设计的要素占据了主导性地位。

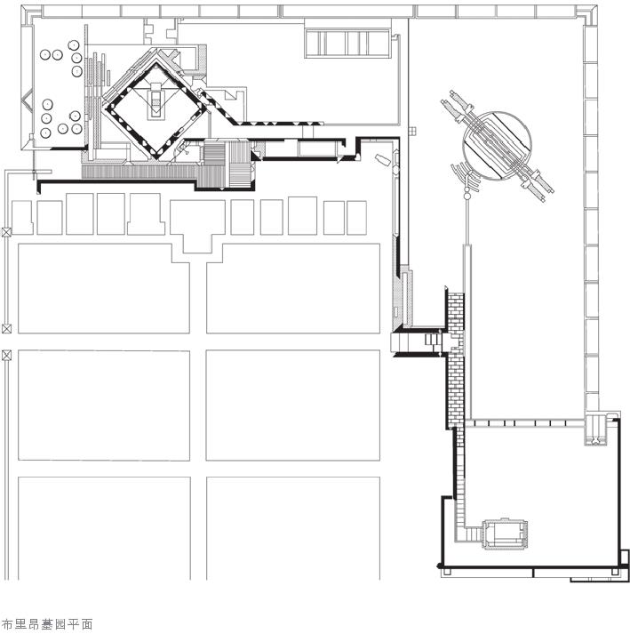
斯卡帕设计的墓园位于一块 L 形的场地上,环绕在圣维托达尔蒂沃勒长方形老公墓的北侧与东北角上。2 400 m2 的占地面积上,构筑物所占的比例很小,实际上绝大部分是水池、草坪、树林以及路径。这也是布里昂墓园更像是花园、能吸引村庄中的孩子与狗在这里玩耍的原因。墓园入口位于 L 形南翼的西部,从这里进入之后,是一条南北向的窄廊,向南是一片矩形水池,池中心是一个建造在混凝土平台上的亭子。向北走是一片草坪。草坪里,位于 L 形转角部分的是布里昂夫妇的石棺。从这里转向 L 形的北翼,经过另一块草坪之后,是一个斜向放置的、被水池部分环绕的小礼拜堂,再往西是 11 棵高大柏树组成的树林。一条路径从树林旁穿过,通往连接村庄的道路(图 2)。
布里昂墓园被认为是最具有斯卡帕特色的作品,建筑中充满了这位意大利大师别具一格的细节处理,比如遍布各处的混凝土叠涩阶梯、墙体上嵌入的双环与囍符号,以及混凝土、木头、大理石、黄铜等材料搭配形成的建构细节。建筑研究者们花费了很多精力试图解析这些建筑语汇的内涵,但因为缺乏文献证据,很多解释仍然只能是揣测。在这里,笔者要讨论的不是布里昂墓园的全部内容,而是设计中的景观要素。值得庆幸的是,虽然斯卡帕说他对于写作抱有某种恐惧[24],所以几乎没有留下什么文献资料,但是关于布里昂墓园他留下了一些讲稿与采访录音,使得人们能够更多地了解他的设计意图。

比如谈到最初的设计决定,斯卡帕所构想的就是一个景观设计要素:他在通向墓园的两条乡村道路两侧都种植了柏树,这是意大利墓园建筑的传统。今天,斯卡帕所栽种的柏树仍然高高地耸立在路旁(图 3)。斯卡帕对于传统有深刻的认识,这是他的建筑作品中最为重要的特征[25],显然,对于景观要素传统,他的立场也是一以贯之的。

比如谈到最初的设计决定,斯卡帕所构想的就是一个景观设计要素:他在通向墓园的两条乡村道路两侧都种植了柏树,这是意大利墓园建筑的传统。今天,斯卡帕所栽种的柏树仍然高高地耸立在路旁(图 3)。斯卡帕对于传统有深刻的认识,这是他的建筑作品中最为重要的特征[25],显然,对于景观要素传统,他的立场也是一以贯之的。
另一个景观设计要素——草坪——在布里昂墓园中占据了超过 1/2 的面积,布里昂夫妇的石棺也被放置在草坪之中。在这里,斯卡帕有一个特殊的设计,他将石棺所在的草坪抬高了将近 1 m,而石棺的地坪则仍然停留在原来的地面高度之上,这样,两个石棺看起来就像是陷在大地之中。斯卡帕的解释是: “死去的男人想要贴近大地,因为他就出生在这个村庄。”[23]通过抬高与凹陷,斯卡帕呈现了一种回归大地的景象,这是他对死亡的一种阐释。


布里昂墓园主要是用混凝土建造的,在斯卡帕的设计中,混凝土呈现出超乎想象的丰富性。比如最引人注目的是遍布在各处的混凝土墙体、屋面、基座以及池壁之上的阶梯状叠涩(图 4)。
这是一种极为独特的元素,在现当代建筑中,几乎没有任何其他知名建筑师如此密集地使用这种元素。在布里昂墓园之后,混凝土叠涩已经被视为最具有斯卡帕个人特色的建筑与景观设计语汇。对于为何要这样处理,斯卡帕没有留下专门的解释。他只是简要地提到叠涩可以带来光线的变化[24],就像希腊柱式的凹槽一般。但是这似乎并不足以解释这种元素的密集。在这里,读者的解读可能与建筑师的意图同样重要。一种典型的观感是叠涩的复杂性似乎对应于生命的复杂性。
因为一段叠涩实际上就是一个序列,它们长长短短、方向各异,就类似于生命中各种各样的进程,有的进程漫长,比如学习与婚姻,有的进程短暂,比如偶遇与突发事件。一种可能的解读是,斯卡帕引导我们在面对死亡之时回头审视生命中的各种进程,去反思人生的经历,以及这种经历所蕴含的意义。好的作品能够激发读者充沛地联想与回应,甚至超越建筑师个人的初始意图,斯卡帕的设计展现了“作者的死亡”背后所蕴含的丰富潜能。
这是一种极为独特的元素,在现当代建筑中,几乎没有任何其他知名建筑师如此密集地使用这种元素。在布里昂墓园之后,混凝土叠涩已经被视为最具有斯卡帕个人特色的建筑与景观设计语汇。对于为何要这样处理,斯卡帕没有留下专门的解释。他只是简要地提到叠涩可以带来光线的变化[24],就像希腊柱式的凹槽一般。但是这似乎并不足以解释这种元素的密集。在这里,读者的解读可能与建筑师的意图同样重要。一种典型的观感是叠涩的复杂性似乎对应于生命的复杂性。
因为一段叠涩实际上就是一个序列,它们长长短短、方向各异,就类似于生命中各种各样的进程,有的进程漫长,比如学习与婚姻,有的进程短暂,比如偶遇与突发事件。一种可能的解读是,斯卡帕引导我们在面对死亡之时回头审视生命中的各种进程,去反思人生的经历,以及这种经历所蕴含的意义。好的作品能够激发读者充沛地联想与回应,甚至超越建筑师个人的初始意图,斯卡帕的设计展现了“作者的死亡”背后所蕴含的丰富潜能。
斯卡帕是公认的细节设计大师,布里昂墓园的建筑与景观设计中也蕴含着难以穷尽的丰富细节。我们无法在这里逐一进行讨论[26]②,在下面的论述中,笔者将聚焦于一个重要的景观设计要素,以之为线索,导向后续对评论方法的解释。这个景观要素就是布里昂墓园中的“水”。
作为来自威尼斯的建筑师,斯卡帕对水这一元素的热衷并不难理解。在他的很多经典作品中,比如维罗纳古堡博物馆、威尼斯建筑大学校门、奎里尼·斯坦帕尼亚基金会等,水都扮演了重要角色。布里昂墓园的所在地是一片旱地农田,原本并没有河流和水池存在。斯卡帕在这个原本没有水元素的墓地中挖出 1 m 深的水池,并且赋予它令人叹服的内涵。比如,斯卡帕特意要求水池看起来是黑色的,所以采用了很复杂的工艺来处理池底[27]。那么,为何要是黑色的呢?斯卡帕没有直接解释,但是从其他一些线索看来,他的意图是通过黑色来体现水的深不可测,这样水池就仿佛是一个无法穷尽的源泉。如果进一步追问,是什么东西的源泉?斯卡帕对此有清晰解答,那就是生命的源泉。这当然不只是说辞而已,而是有特定的建筑与景观手段给予支持的。


在通向水池的廊道中,有一道玻璃门,开启的方式是将整个门往下压到地面的缝隙之中。在人通过之后,玻璃门会自动抬升上来,这时人们会看到门上流下水珠,原来缝隙下就是水池,玻璃门沉入黑色的水池之中,又从中升起。为何要做这么反常的设计?斯卡帕的回答是:“身体在张力中聚集在一起,通过穿透一道隔膜来获得通路,这也就是一种穿透的动态图景,是生产的反向图景,在其中,身体回到了胚胎的位置,象征着重新回到母亲的子宫。”[28] 可以认为,黑色的水池,就是“母亲的子宫”,那里也没有光线穿透,但黑暗恰恰是所有人类生命的源泉。类似的比喻,斯卡帕也用在了沉思亭上,“容纳了亭子的水池因此就是母亲之地,而亭子则是胚胎漂浮的地方”[28](图 5)。
所以,站在水池中央沉思亭里的人,就仿佛是刚刚诞生的婴儿,她以好奇的眼光看着周围的一切。斯卡帕在沉思亭中进行了大量的细部设计,据说仅是为这一个亭子,他就绘制了上千张草图。而在所有细节中,最为独特的是 2 个圆形部分重叠形成的双孔,引导人们透过双孔往外看。罗伯特·麦卡特告诉我们,这个双孔的高度与斯卡帕夫人的双眼高度齐平,也与布里昂夫人的高度相符,斯卡帕希望人们从这个特定的地方看向特定的方向这一意图是分外鲜明的[21]253。

所以,站在水池中央沉思亭里的人,就仿佛是刚刚诞生的婴儿,她以好奇的眼光看着周围的一切。斯卡帕在沉思亭中进行了大量的细部设计,据说仅是为这一个亭子,他就绘制了上千张草图。而在所有细节中,最为独特的是 2 个圆形部分重叠形成的双孔,引导人们透过双孔往外看。罗伯特·麦卡特告诉我们,这个双孔的高度与斯卡帕夫人的双眼高度齐平,也与布里昂夫人的高度相符,斯卡帕希望人们从这个特定的地方看向特定的方向这一意图是分外鲜明的[21]253。

那么从双孔向外看,会看到什么呢?在视线中心,是位于 L 形墓地交点上的布里昂夫妇的石棺。斯卡帕建造了一道混凝土拱桥,覆盖在两座石棺之上。在视线的左侧,是一条联系石棺与水池的狭窄水道,有水流在水道中流淌(图 6)。一边是象征新生的水池,一边是指代死亡的石棺,新生与死亡之间就是生命的旅程。用流水来象征生命的流淌,斯卡帕在威尼斯奎里尼·斯坦帕尼亚基金会花园中也是这样处理的。不过,布里昂墓园的独特之处在于,水流不是从新生流向死亡,而是从石棺处涌出,流向水池,也就是说是从死亡流向新生。那么,如何理解这种反向的流动呢?


